跳至内容

Danny 和 Christina 的厨房地圖

Christina 爱吃,Danny 爱妻。他们的厨房秘密,盛载了细水长流的爱情痕迹。

Danny 和 Christina 的厨房地圖
面积偌大的厨房,窗外是一片绿油油山景,在这里做饭心情必然愉快。A区:大雪柜蕴藏了许多秘宝,放葱的特制盒子有保鲜功效、瓶瓶罐罐当中有自家炒蟹粉,冰格堆满各式冻肉,他们更从美国带回真空包装机,干湿食材都能封存;B区:自从 Danny 入主厨房,陈设渐渐按他的动线转变,砧板放在锌盘右方,自制的刀架就在下面,锌盘有另一块砧板,方便洗切和立即下灶烹煮,动作流畅地由左移向右,角落的调味架放了是最常用的调味料,一切手到拿来;C区:前工人房是 Christina 和 Danny 的秘密仓库,满架的香料和药材可媲美药材铺,这里的雪柜专门储存中式干货和汤料,这些容易发霉的食材得细心照料。地上满酒是陈酿梅酒,乱中有序。

[厨房的秘密]我们探寻不同煮食人的厨房, 发掘里面的秘密,那可能是一段特别的时光,某种珍贵的味道,一道有身世的食谱, 某件漂洋过海的香料……

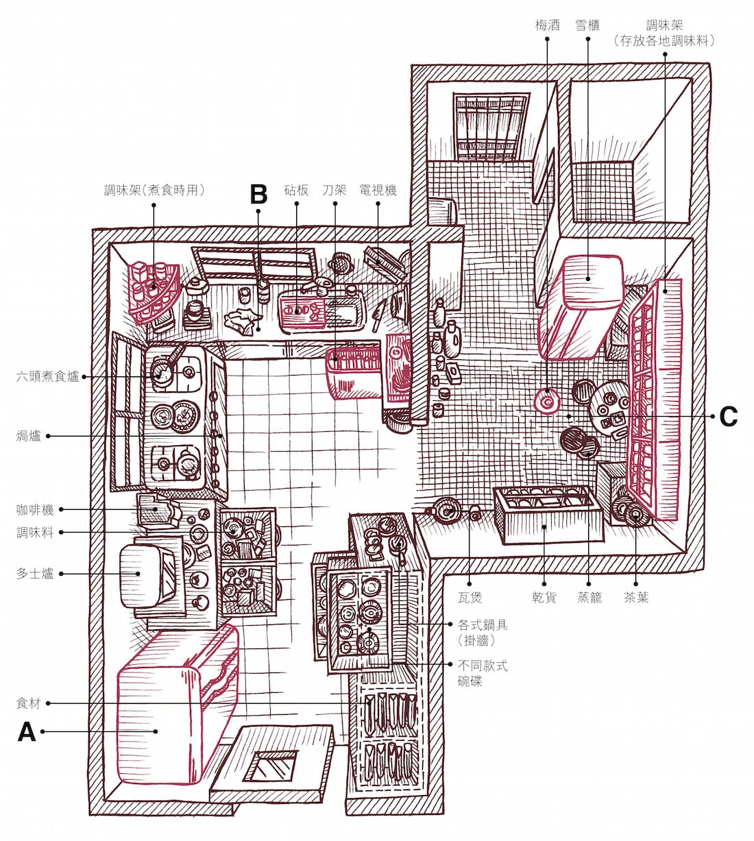
面积偌大的厨房,窗外是一片绿油油山景,在这里做饭心情必然愉快。A区:大雪柜蕴藏了许多秘宝,放葱的特制盒子有保鲜功效、瓶瓶罐罐当中有自家炒蟹粉,冰格堆满各式冻肉,他们更从美国带回真空包装机,干湿食材都能封存;B区:自从 Danny 入主厨房,陈设渐渐按他的动线转变,砧板放在锌盘右方,自制的刀架就在下面,锌盘有另一块砧板,方便洗切和立即下灶烹煮,动作流畅地由左移向右,角落的调味架放了是最常用的调味料,一切手到拿来;C区:前工人房是 Christina 和 Danny 的秘密仓库,满架的香料和药材可媲美药材铺,这里的雪柜专门储存中式干货和汤料,这些容易发霉的食材得细心照料。地上满酒是陈酿梅酒,乱中有序。插图由 Leumas To 绘制
面积偌大的厨房,窗外是一片绿油油山景,在这里做饭心情必然愉快。A区:大雪柜蕴藏了许多秘宝,放葱的特制盒子有保鲜功效、瓶瓶罐罐当中有自家炒蟹粉,冰格堆满各式冻肉,他们更从美国带回真空包装机,干湿食材都能封存;B区:自从 Danny 入主厨房,陈设渐渐按他的动线转变,砧板放在锌盘右方,自制的刀架就在下面,锌盘有另一块砧板,方便洗切和立即下灶烹煮,动作流畅地由左移向右,角落的调味架放了是最常用的调味料,一切手到拿来;C区:前工人房是 Christina 和 Danny 的秘密仓库,满架的香料和药材可媲美药材铺,这里的雪柜专门储存中式干货和汤料,这些容易发霉的食材得细心照料。地上满酒是陈酿梅酒,乱中有序。

一个好厨房,未必需要最美丽的装潢或最新颖的厨具,而是入厨的人,在里面度过了怎样的时光。每个厨房都有它的风格,是用家以日积月累的经验所建构起来的,转角里满布生活细节。退休夫妇 Danny 和 Christina 的厨房秘密,盛载了细水长流的爱情痕迹,无论是精致盛宴抑或日常早餐,他们都合作无间,就像筷子,一双一对,年年月月在餐桌里,挟起五味纷陈的菜式,缺了一只,便吃不出味道了。

广告监制的厨房改造

本刊载内容版权为 端传媒编辑部 或相关单位所有,未经端传媒编辑部授权,请勿转载或复制,否则即为侵权。